Guide Price £749,995 Sold

Whilst retaining a wealth of period features and exposing a lot of new ones including beams, timbers, brick work and fireplaces, the extensive refurbishment of the property has made it a ready to move into modern living space. The open plan kitchen/living/dining room provides a spacious every day living area with two sets of sliding doors across the rear of the room to the south facing garden, perfect for entertaining. The snug with its dark decor and open fireplace lends itself to cosy movie nights in or a quiet place to escape. The first floor has three double bedrooms all with fitted wardrobes, the main bathroom has a lovely tranquil feeling so a long soak in the free standing double ended bath shouldn't be too difficult. The newly made en suite to the master bedroom is a great addition to the property with a large walk in wet room rain shower. The property has been rewired, a new central heating system installed along with a wet under floor heating system to the whole of the ground floor and electric under floor heating to the bathroom and en suite, television points and Cat 6 in all rooms. Centrally located within a short walking distance to the shops including the butchers, bakery, deli, etc. as well as schools and sporting facilities, Watlington also has easy access to M40 J6 for Oxford and the North, Heathrow and London to the East.

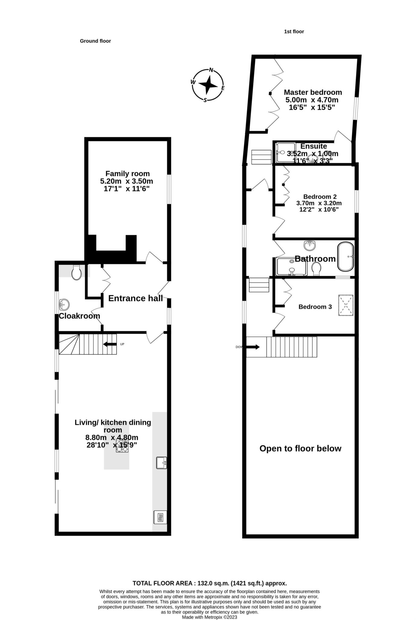
ACCOMMODATION - GROUND FLOOR:
Front door into:

ENTRANCE HALL: - 3.01m (9'11") x 2.51m (8'3")
Doors to the snug, cloakroom, open plan living area and cloaks cupboard. Recessed ceiling down lights.

CLOAKROOM:
Fitted with a white suite comprising hand wash basin and concealed cistern WC. Recessed ceiling down light and obscured glass window to the rear.

SNUG: - 4.97m (16'4") x 3.44m (11'3")
Open fireplace with stone tiled hearth, ceiling chandalier, television aerial point and sash window to the front.

OPEN PLAN KITCHEN/DINING/LIVING ROOM: - 8.61m (28'3") x 4.77m (15'8")
A spacious vaulted ceiling room with a wealth of period features from exposed ceiling beams to an original wooden pulley wheel and exposed brick built fireplace, The kitchen is fitted with a range of matching wall and base units including an island housing cupboards and drawers, quartz work tops and splash back, under set ceramic sink with mixer tap, inset induction hob with down draft extractor, built in oven, microwave, fridge/freezer, dishwasher and washer dryer, under unit and over counter lighting. The rest of the room provides plenty of space for sitting and dining furniture. Wall light points, recessed ceiling down lights, built in storage cupboards with television aerial point, high level windows with shutters to the front, two sets of sliding doors opening to the south facing garden and stairs rising to the first floor.

FIRST FLOOR - LANDING:
Doors to all three bedrooms and bathroom, recessed ceiling down lights, skirting board courtesy sensor lights, hatch to boarded loft space housing central heating combi boiler and high level windows to the rear,

BEDROOM THREE: - 3.63m (11'11") x 2.52m (8'3")
Double room with fitted wardrobes, recessed ceiling down lights, bedside pendant lights, television aerial point and Velux roof light.

BATHROOM: - 2.92m (9'7") x 1.74m (5'9")
Fitted with a white suite comprising free standing double ended bath, large walk in rain shower, vanity hand wash basin and concealed cistern WC, attractive exposed brick fireplace and wall, exposed ceiling timbers, wall mounted heated towel radiator, tiled floor with under floor heating, pendant light and censor wall light points, high window to the side.

BEDROOM TWO: - 3.63m (11'11") x 3.22m (10'7")
Double room with fitted wardrobes, pendant light, television aerial point and sash window to the front.

MASTER BEDROOM: - 5.07m (16'8") x 4.19m (13'9")
Double room with vaulted ceiling showing the exposed beams and timbers, built in wardrobes, pendant light, wall lights, television aerial point, sash window to the front and door to.

EN SUITE SHOWER ROOM:
Fitted with a white suite comprising large walk in rain shower, vanity hand wash basin and concealed cistern WC, tiled floor with under floor heating, wall mounted heated towel radiator, exposed brick wall and timbers, recessed ceiling down lights and wall lights.

OUTSIDE:
The south facing private garden is paved adjacent to the property with the remaining laid to lawn and a decked seating area, raised sleeper flower beds, outside lighting and tap, enclosed on three sides by brick walls with a gate to the rear,

GARAGE AND PARKING:
A large single garage in a block of two with wooden up and over door. Parking in front for one car as well as additional parking to the rear of the property.

SERVICES AND OUTGOINGS:
Mains water, drainage, gas and electricity. Wet under floor and gas central heating. Telecom subject to regulations. South Oxfordshire District Council - Tax Band F.



Council Tax
SODC Council Tax, Band F

Notice
Please note we have not tested any apparatus, fixtures, fittings, or services. Interested parties must undertake their own investigation into the working order of these items. All measurements are approximate and photographs provided for guidance only.


/// apricot.forgiving.innovator is the what3words address for the best entrance. what3words has given every 3 metre square in the world a unique combination of 3 random words.

Floor Plan
EER Chart

The Energy-Efficiency Rating is a measure of a home's overall efficiency. The higher the rating, the more energy-efficient the home is, and the lower the fuel bills are likely to be.

Utility Supply Type
Electric Mains Supply
Gas Mains Supply
Water Mains Supply
Sewerage Mains Supply
Broadband None
Telephone Landline

Other Items Description
Heating Gas Central Heating
Garden/Outside Space Yes
Parking Yes
Garage Yes

Broadband Coverage Highest Available Download Speed Highest Available Upload Speed
Standard 20 Mbps 1 Mbps
Superfast 217 Mbps 33 Mbps
Ultrafast 1000 Mbps 1000 Mbps

Mobile Coverage Indoor Voice Indoor Data Outdoor Voice Outdoor Data
EE Likely Likely Enhanced Enhanced
Three No Signal No Signal Enhanced Enhanced
O2 Enhanced Likely Enhanced Enhanced
Vodafone Likely Likely Enhanced Enhanced

Broadband and Mobile coverage information supplied by Ofcom.


marker icon